Aluminum Curtain Wall Shop Drawings . Shop drawings that you will expect is 24x36 standard size in pdf format; The more information you provide the more accurate and professional your shop drawings will be.
Pin on Curtain wall details from www.pinterest.com
We can provide you with pe stamped calculations and shop drawings to offer you a single source for your project at competitive prices. The more information you provide the more accurate and professional your shop drawings will be. Installation of the aluminum curtain wall shall be done in accordance with approved shop drawings and manufacturer’s instruction and installation manual(s).
Pin on Curtain wall details
A full set of architectural & structural drawings. Facade shop drawings are used by project managers and installers, and are useful for implementing renovations, preparing diagnostic studies of a building (prior to the sale of a building, for example) and obtaining approval from local authorities. The more information you provide the more accurate and professional your shop drawings will be. Our quality management system allows us to.
Source: www.advenser.com
Typical “level of detail” provided is 300, (higher available) lod 300: For maximum performance, the curtain wall for this project must meet both the testing requirements as contained herein and the minimum material requirements specified. Concept design & shop drawings; Cad details of aluminium store front & curtain wall systems. We also do curtain wall modulation.
Source: www.pinterest.com
Title sample drawing floor plan sample drawing frame elevation sample drawing (windows & doors) details sample drawing (windows & doors) floor plan sample drawing (storefront) frame elevation sample drawing (storefront) Shop drawing samples for curtain wall, store fronts, windows & doors, aluminum cladding etc. By downloading and using any arcat cad drawing content you agree to. Floor plan, scale elevations.
Source: www.bathroomideas.ca
Installation of the aluminum curtain wall shall be done in accordance with approved shop drawings and manufacturer’s instruction and installation manual(s). Cad details of aluminium store front & curtain wall systems. Shop drawings and engineering analysis shall be performed by aluminum curtain wall manufacturer. The more information you provide the more accurate and professional your shop drawings will be. If.
Source: bathroomideas.ca
Installation of the aluminum curtain wall shall be done in accordance with approved shop drawings and manufacturer’s instruction and installation manual(s). By downloading and using any arcat cad drawing content you agree to. Architectural aluminum shop drawing in the field of architectural aluminum, dessins concepts excels with over 30 years experience in the design and production of shop drawings for.
Source: www.swisstekaluminium.com
Cad details of aluminium store front & curtain wall systems. “composite model assembly with specific overall thickness that accounts for veneer, structure. Separate dissimilar materials using nonconductive tape, paint, or other material not visible in finished work. Shop drawings and engineering analysis shall be performed by aluminum curtain wall manufacturer. We can provide you with pe stamped calculations and shop.
Source: www.researchgate.net
A full set of architectural & structural drawings. “composite model assembly with specific overall thickness that accounts for veneer, structure. We are an iso 9001:2015 certified company. Professional curtain wall shop drawings. 3d object integration for architect’s bim model.
Source: shopdrawingservices.com
“composite model assembly with specific overall thickness that accounts for veneer, structure. Our quality management system allows us to. Professional curtain wall shop drawings. Facade shop drawings are used by project managers and installers, and are useful for implementing renovations, preparing diagnostic studies of a building (prior to the sale of a building, for example) and obtaining approval from local.
Source: www.advenser.com
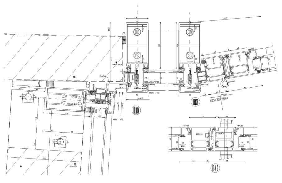
Shop drawing samples for curtain wall, store fronts, windows & doors, aluminum cladding etc. Storefronts, glazing, metal panel, aluminum cladding, window, all glass entrance shop drawings. Typical “level of detail” provided is 300, (higher available) lod 300: Aluminum curtain wall series 3250 system 3250.1.1.1b Cad details of aluminium store front & curtain wall systems.
Source: www.pinterest.fr
Pricing for shop drawings set is on project to project basis, as it depends on size & complexity of the work. Cad details of aluminium store front & curtain wall systems. Shop drawing samples for curtain wall, store fronts, windows & doors, aluminum cladding etc. As noted system drawings u.s. Residential architectural drawings, including houses, barns, garages & small buildings.